Date :
Lieu :
Surface :
Maître d'ouvrage :
Maître d'oeuvre :
Mission :
Coût travaux :
Crédit photos :



Programme :

PROJET DE RENOVATION D'UNE MAISON A MARSEILLE

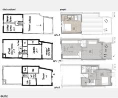
L’opération porte sur la réhabilitation totale d’une maison de ville à Marseille.

L'espace existant, organisé sur demi-niveaux, a été totalement décloisonné, afin de profiter d'une vue traversante dans l'ensemble de la maison. 

La distribution actuelle est remaniée, afin de faciliter la circulation d'un niveau à un autre. Les escalier deviennent partie intégrante de l'aménagement de l'ensemble.

Les sols sont traités de façon unitaire, élargissant l'espace du séjour à la terrasse, qui bénéficie d'une vue privilégiée sur les collines et la mer.

2012 - 2013
13 009 Marseille
95 m²
privé
LM2
Complète
150 000 € HT
LM2

projet réalisé au sein de