Date :
Lieu :
Surface :
Maître d'ouvrage :
Maître d'oeuvre :
Mission :
Coût travaux :
Crédit photos :



Programme :

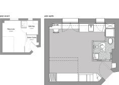
PROJET DE RENOVATION D'UN STUDIO 75018 PARIS

Le client nous a contacté suite à l'achat d'un studio dans un état d'insalubrité avancé.

Il s'agissait d'assainir le studio et d'optimiser l’espace au maximum afin qu’il soit mis en location et confortable à vivre pour une personne seule, et ce sans qu’elle se sente trop à l’étroit. Aucun recoin n’a été laissé de coté, tant dans l’aménagement de la micro salle d’eau éclairée en second jour, que dans la cuisine assez spacieuse pour cuisiner au quotidien.
Nous avons restauré le mur en pierre d’origine, et profité de la hauteur sous plafond généreuse pour placer le lit en hauteur.
Les éléments de mobilier ont été réalisés sur mesure, afin de s'adapter aumieux aux contraintes liées à la petite surface de l'appartement.

2014
75018 Paris
18 m²
privé
LM2
Complète
30 000 € HT
Marine Lainé

projet réalisé au sein de