Date :
Lieu :
Surface :
Maître d'ouvrage :
Maître d'oeuvre :
Mission :
Coût travaux :
Crédit photos :



Programme :

PROJET DE RENOVATION D'UNE MAISON A VANVES

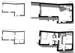
Rénovation partielle d'une maison de 78m² sur deux niveaux.

Il s'agissait ici de réaménager une maison à faible coût pour un couple avec 1 enfant.
Afin de réduire les coûts, nous avons concentré l'interventions sur les éléments essentiels; à savoir :

- Création d'une chambre supplémentaire à l'étage

- Création de WC au RDC

- Remplacement de l'escalier colimaçon existant par la création d'un escalier sécurisé sur mesure avec rangements intégrés

- Apport de lumière avec la création de velux et fenêtres supplémentaires comprenant une ouverture de façade porteuse

- La SDE a été conservé en état et les revêtements de sol conservés au maximum.

2017
92 170 Vanves
78 m²
privé
blooma architecture
Complète
46 000 € HT
Marine Lainé