Date :
Lieu :
Surface :
Maître d'ouvrage :
Maître d'oeuvre :
Mission :
Coût travaux :
Crédit photos :



Programme :

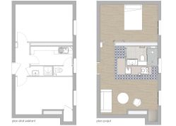
PROJET DE RENOVATION D'UN APPARTEMENT A PARIS

Rénovation d'un appartement deux pièces :

- Rénovation des revêtements de sols / murs / plafonds

- Aménagement d'une cuisine ouverte sur le séjour

- Réaménagement du noyau cuisine/sdb/WC

- Création d'un second jour dans la salle de bain pour éclairage de l'entrée

2015
75011 Paris
35 m²
privé
LM2
Complète
35 000 € HT
Marine Lainé

projet réalisé au sein de