Date :
Lieu :
Surface :
Maître d'ouvrage :
Maître d'oeuvre :
Mission :
Coût travaux :
Crédit photos :



Programme :

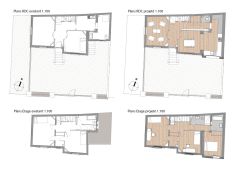
PROJET D'EXTENSION D'UNE MAISON A NOGENT-SUR-MARNE

Les clients nous ont contacté suite à l'aquisition d'une maison à Nogent-sur-Marne entièrement à rénover.

Ils avaient d’abord pensé à une surélévation.
Le réglement d’urbanisme ne la permettant pas, nous leur avons proposé de repenser le projet à l’horizontale et de s’agrandir au moyen d’une extension latérale.

Nous avons repensé l'aménagement global de la maison, le nouveau volume accueillera au rdc la cuisine dans le prolongement des pièces à vivre, et à l’étage une chambre avec salle de bain.

2015
94 130 Nogent-sur-Marne
88 (existant) + 20 m²
privé
LM2
Partielle : études + PC
140 000 € HT
Marine Lainé

projet réalisé au sein de